开尔云公馆200下跃实景
设计师:孙天立 现代简约/200㎡
作者:弘艺装饰发布时间:2019-06-02
项目名称:听雨品茗
设计师姓名:彭志远
设计公司:北京弘艺装饰唐山分公司
地点:路南区金岸红堡
项目面积:93平米
主要材料:基础工程加地砖、橱柜、卫浴洁具、门等主材。
工程费用:63000元
业主基本信息:
夫妻二人长期在北京工作、生活,等房子装修好以后,女主人就要回唐山发展。有一个小女孩儿,上小学了,老人离的比较远,不怎么过来住,所以在储物和居住方面的要求不是特别高。第一呢,考虑经济,第二考虑方便,第三就考虑情怀了。
业主小故事:
阳台是开放式阳台,传统装修方案肯定是要封起来,但是男业主坚决不同意,他说:“哥是一个又浪漫情怀的人,我要在这里品茶听雨?!比肥?,这是很小资的生活情调,品茶听雨,或读书冥思,这里都将是一个充满情怀的地方。

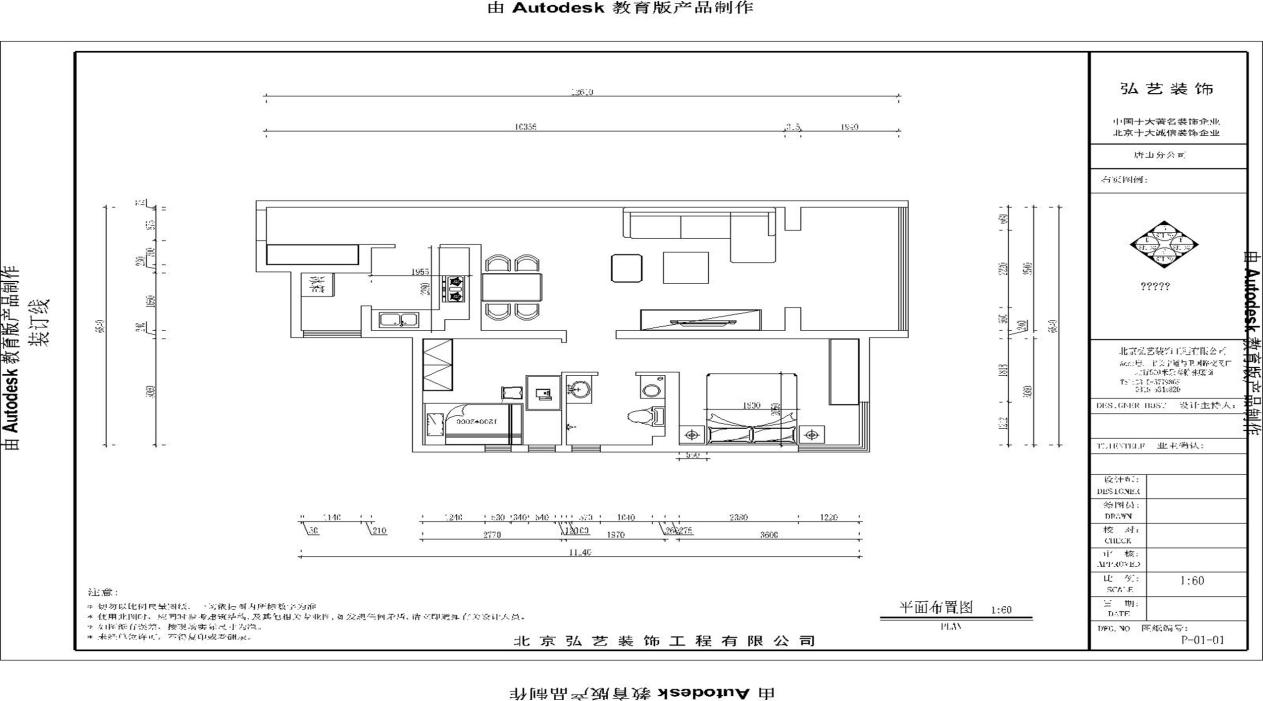
原图分析:
这个户型公摊面积比较大,因为作为93平米的两居室,每个空间面积都不是特别大,尤其是厨房和卫生间的布局更为紧凑。为了能更充分的利用空间,我们把卫生间的门往南挪动了十五公分,从厨房的门做成了推拉门。南北两个卧室窗户的位置也都比较尴尬,床和衣柜很是不好布局。最大的亮点就是入户的鞋柜的位置和露天阳台了。

平面分析:
进门口右手边有足够的空间可以放置鞋柜,增加储物功能,所以这个鞋柜做的是通顶的。电视放到了客厅较短的那面墙上,由于客厅空间不是很大,所以背景墙没有做任何造型。洗衣机放到了卫生间,淋浴区相对老说比较狭窄,就没有做淋浴房。

业主在开始咨询装修的时候,就想做中式或新中式的风格,后期家具配饰呢也是在朝着这个方向努力。在宜居的同时又不喜欢太复杂的造型,同时电视墙又比较短。所以电视墙并没有做什么修饰,其实电视往墙上一挂也没有多少空间了,沙发背景配以一副新中式的装饰画,还是比较有意境的。

业主想要在阳台品茗听雨,那么客厅与阳台中间的隔断门就一定要做好,1.8个厚的断桥铝材质加上三层的钢化防弹玻璃,内部配以木纹色装饰,稳重,隔音,安全,美观??吞傲毖≡竦氖撬厣纳钌迹挥凶龃傲焙?,易拆洗,好安装,使用方便是家居生活的第一位。

考虑到业主的浪漫主义情怀,餐厅为业主选配了一款吊灯,黑檀色的餐桌遇上了白色的餐椅,显得干净、整洁,且不失稳重,又彰显活泼。餐厅的空间也不是很宽敞,所以没有做餐边柜和酒柜,餐桌的上方一组简洁的装饰画,会让家里更加温馨,饭菜也将更有食欲。

对于主卧室,业主的要求是不能挡住他站在窗边观风望景,也就是说床要在窗的北侧,衣柜就只能放到窗户的旁边了。卧室的主要功能就是供人休息,那么更不需要复杂的造型,简单舒适为主。由于空调挂机在衣柜的上方,所以衣柜不能通顶。

次卧室是女儿房,考虑到小姑娘一天天的在长大,所以并没有给她布置成特别明显特征的儿童房,也没有选择公主粉,更多的是考虑其休息、储物和学习的功能性。1.2米的单人床一个人睡觉是非常舒服的,旁边放一个床头柜也足够用了,考虑到空间的限制,书桌智能放到床尾的位置,因为床头柜的旁边要放一个1.5米的衣柜。

整体橱柜实用为主,地面、墙面与顶面都以浅色调为主,搭配上深色橱柜门板,显得稳重大气。冰箱放到了厨房北侧的阳台上,这样就能在厨房做更多的橱柜,地柜与吊柜都做成了满L形,极大限度的利用了厨房的空间,拓展了其储物功能。

因为业主不希望空间太冷,卫生间在选择瓷砖的时候选用了暖色系瓷砖,空间不是很大,所以没有做淋浴隔断,洗衣机放到门后,一进门看到的是洗手台,因为洗手台的使用频率要远高于洗衣机,这样的布局最为方便。卫生间的门一定要选择金属材质,不能用木门。
装修分期
设计师:孙天立 现代简约/200㎡
设计师:张志鹏 其他/115㎡
设计师:邢志超 现代简约/132㎡
设计师:张天任 新古典/147㎡
设计师:姚志杰 现代简约/184㎡
设计师:张志鹏 法式/135㎡